

1﹑在通常情況下,各種閘門與本廠生產的各種啟閉機配套使用。啟閉機及電動頭使用維護詳見閥門電動裝置說明書。
2﹑使用手動閘門時啟閉機用力要均勻,不要在起升或關閉時用力過猛,以免損傷定位裝置。
3﹑手動時不可進行電動操作,電機驅動時手輪不可旋轉,所有結合面的密封處無滲漏。
4﹑由電動變為手動時,即用人工切換手柄向手動方向推動,當推動到一定位置時中間離合器脫離渦輪與手動軸爪呲合成為手動狀態;手動變為電動時為自動切換。要求在半啟閉狀態下工作,可由操作人員根據經驗選擇電動或手動。
5﹑要求對啟閉機齒輪﹑軸承﹑絲桿等部件每季度加注潤滑油一次。

性能及結構
1﹑閘門的設計﹑制造﹑安裝﹑檢驗驗收等符合DL/T5019-94標準的規定。
2﹑形式:洞口式閘門
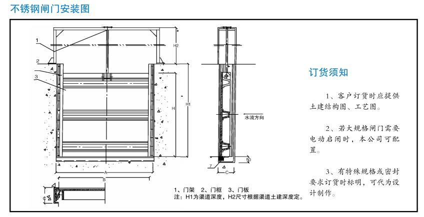
3﹑結構:設備主要由手電兩用啟閉機﹑螺桿﹑門框﹑門體﹑止水橡膠﹑吊耳及銷軸等部件組成。密封性能良好,久用磨損后可通過螺旋來更換密封裝置保持正常工作。具有結構合理﹑密封性好﹑安裝﹑調試﹑使用﹑維護方便﹑性能可靠等特點。閘門的門板﹑門框系采用不銹鋼,適用于污水腐蝕環境。
4﹑工作場所:室外
5﹑安裝形式:洞口式
適用范圍 主要用于城市給水排水﹑化工防洪﹑水利等水工構建物﹑出水口﹑作流道切換或截斷水流之用。可廣泛用于自來水廠﹑污水處理廠﹑城市雨污水泵站﹑水利防汛等行業。

重慶明泰給排水材料有限公司
手機:13206168555
手機:13808341839
電話:023-68651960
傳真:023-68854159
QQ:840801222
地址:重慶市九龍坡區科城路127號恒基擁翠名門C1棟16-4號